Ventanas de Aluminio Corredera Minimalista
Elite 100
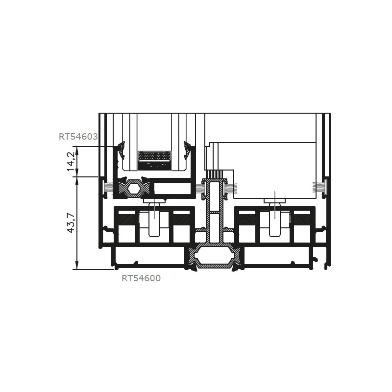
Máxima expresión del minimalismo, con sistema de ventana, balconera y puerta corredera con Rotura de Puente Térmico, consiguiendo esa máxima entrada de luz que tanto buscamos. Carril multi rodamiento e infinidad de combinaciones.
Permeabilidad al aire: (UNE-EN1026:2000) clase 4
Estanqueidad al agua: (UNE-EN1027:2000) clase 7A
Resistencia al viento: (UUNE-EN12211:2000) clase C5
Máximo aislamiento acústico: 38 dB
Transmitancia: Desde 1,4 (W/ m2K )
Ancho de marco: 100mm
Acristalamiento máximo: 32mm.
Otras Características
Además de tener altas prestaciones, ofrece una gran variedad de acabados y combinaciones.
Acabados
Posibilidad de bicolor.
Lacados colores (RAL).
Lacados especiales
Anodizados
Efecto madera.
Aperturas
Corredora monocarril.
Marco de dos carriles.
Marco de tres carriles.
Galandage.
Esquina 90º sin poste.
Sección
¿Necesitas Asesoria?
Nuestro equipo experto te ayuda a elegir las puertas pivotantes perfectas para tu hogar: contacta con nosotros y encontraremos la mejor solución para ti.
¿TIENES UN PROYECTO/IDEA?
